Nhà thép tiền chế

Xà gồ

Các thanh thép hình C hoặc Z, lắp đặt ngang giữa các khung chính, có chức năng đỡ mái và tường bao che, đồng thời phân bổ tải trọng mái, tăng độ cứng và ổn định cho công trình.

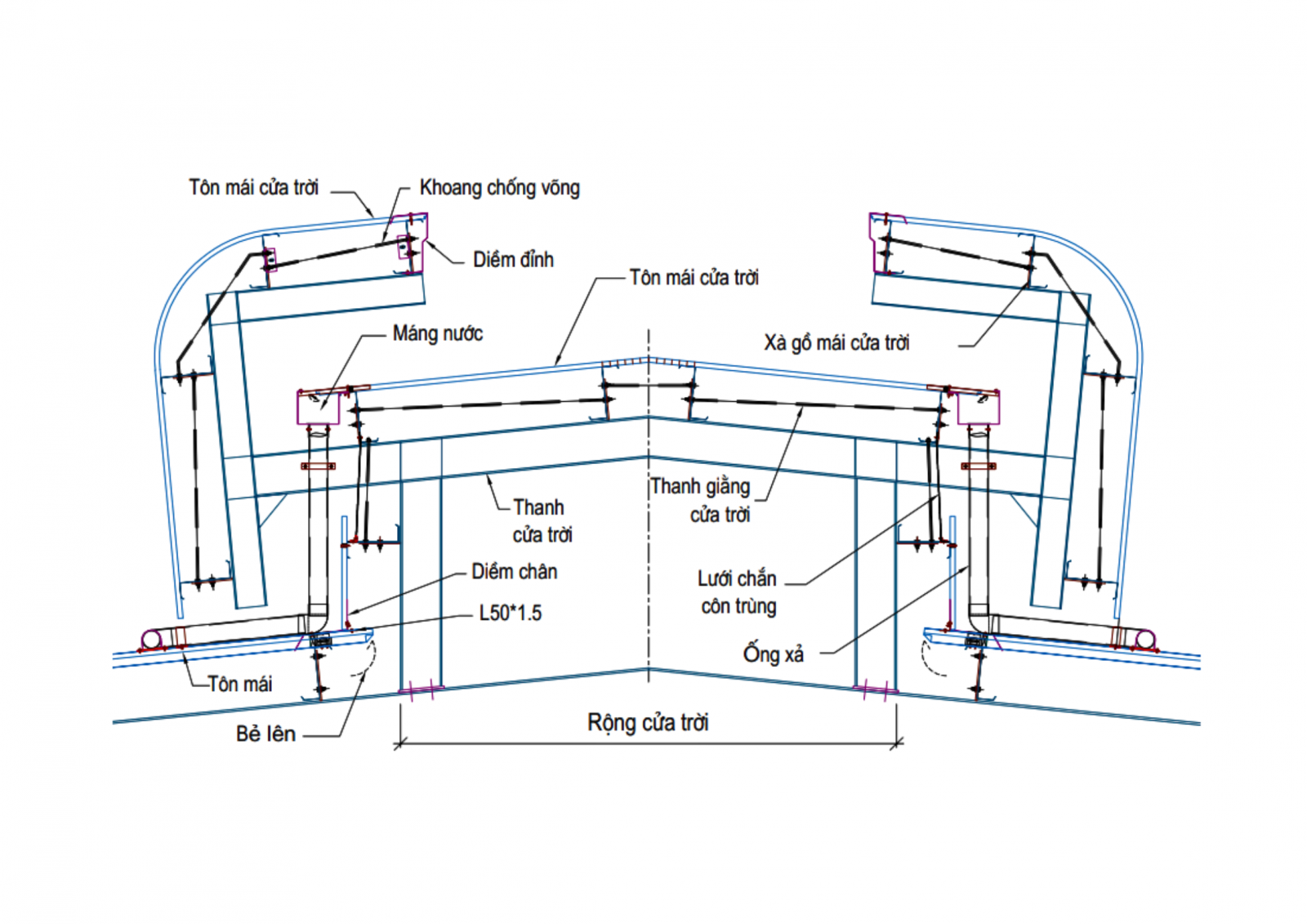
Hệ khung nóc gió

Là hệ khung thép được bố trí trên mái, giúp thông gió, giảm nhiệt độ bên trong nhà xưởng, đồng thời hỗ trợ ổn định kết cấu mái.

Sàn lửng (Mezzanine)

Sàn phụ được bố trí bên trong nhà thép tiền chế nhằm tăng diện tích sử dụng mà không làm thay đổi kết cấu chính. Sàn lửng thường sử dụng sàn deck thép liên kết với hệ dầm, có khả năng chịu lực tốt, dễ thi công, phù hợp với nhu cầu mở rộng không gian và công năng.

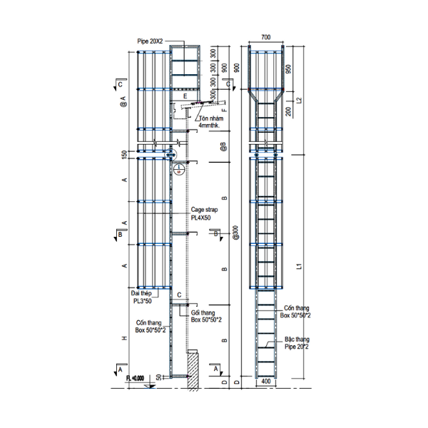
Cầu thang, thang leo mái

Được chế tạo từ thép, thép mạ kẽm hoặc Inox, dùng để kết nối giữa các tầng hoặc sàn lửng, đảm bảo độ bền, an toàn và thuận tiện cho việc di chuyển, thoát hiểm.

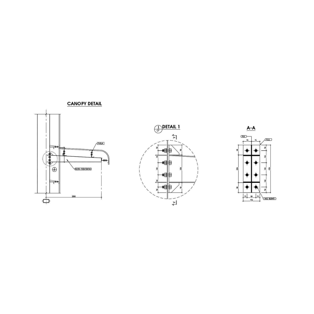
Hệ mái sảnh (Canopy)

Kết cấu mái phụ nhô ra phía trước hoặc bên hông công trình, thường dùng để che chắn lối đi, khu vực bốc xếp hàng hóa, bảo vệ khỏi tác động của mưa nắng.

Hệ khung đỡ vách ngăn

Gồm các khung thép nhẹ hoặc thanh giằng, có nhiệm vụ nâng đỡ và cố định các tấm vách ngăn, đảm bảo sự vững chắc và ổn định cho từng khu vực chức năng bên trong công trình